Moderne 2-Zimmer-Gartenwohnung in ruhiger Lage in Koblach
Objektbeschreibung
Objektbeschreibung
Die wichtigsten Informationen auf einen Blick:
•Objektart: 2-Zimmer-Gartenwohnung
•Adresse: Neuburg 7, 6842 Koblach
•Wohnanlage mit 9 Einheiten
•Baujahr: 2016
•Wohnnutzfläche: ca. 53,73 m²
•Terrasse: ca. 18,47 m²
•Gartenfläche: ca. 104,35 m²
•Kellerabteil: ca. 5,17 m²
•Heizung: Zentrale Erdwärmepumpe unterstützt durch Photovoltaik, Fußbodenheizung
•Energiekennzahl: B 29
•Kaufpreis Wohnung: € 298.000,–
•Tiefgaragenplatz: optional € 23.000,–
•Gesamtpreis inkl. TG: € 321.000,–
•Betriebskosten: € 289,20,- inkl. TG & Reparaturfonds i.H.v. € 78,42,-
•Wohnbauförderung: ca. € 57.000,– übernehmbar
•Verfügbarkeit: ab sofort, bezugsfertig
•Sonstiges: Besucherparkplätze, gepflegte Anlage
Beschreibung:
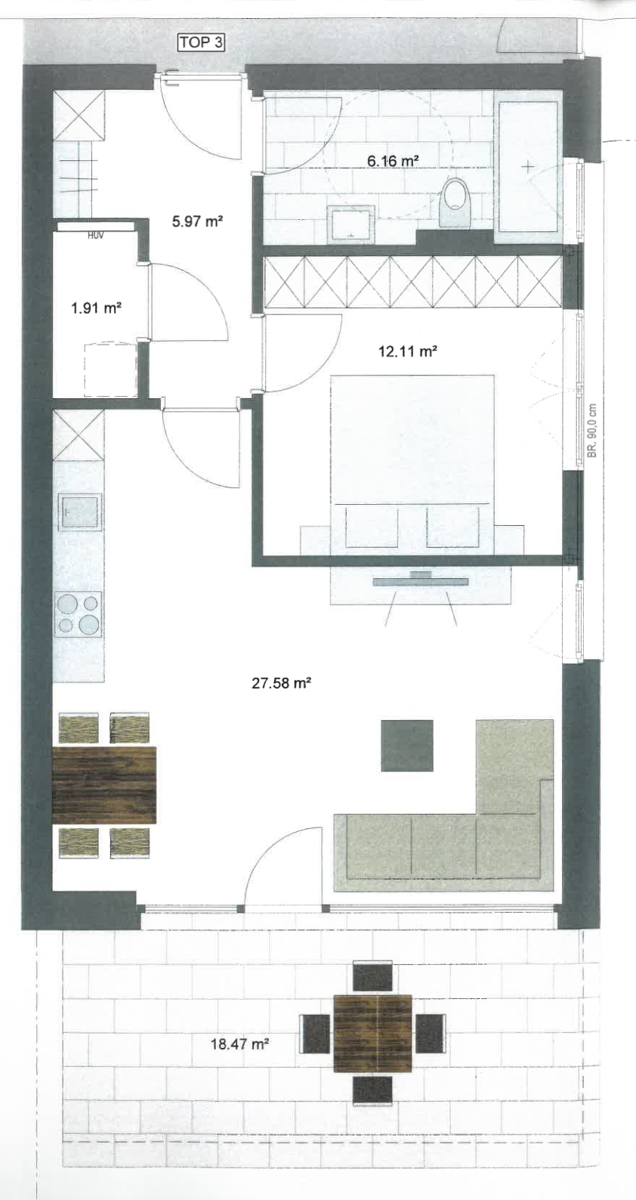
Diese attraktive 2-Zimmer-Gartenwohnung befindet sich in einer äußerst gepflegten Wohnanlage mit lediglich neun Einheiten in ruhiger Wohnlage von Koblach, Neuburg 7 und wurde im Jahr 2016 errichtet.
Die Wohnung überzeugt durch einen durchdachten Grundriss auf einer Wohnnutzfläche von ca. 53,73 m². Der offene Wohn- und Essbereich bildet das Herzstück der Wohnung und bietet direkten Zugang zur großzügigen Terrasse mit ca. 18,47 m² sowie zum angrenzenden Garten mit beeindruckenden ca. 104,35 m². Dieser private Gartenbereich eröffnet vielfältige Nutzungsmöglichkeiten – sei es zum Entspannen, für Hobbygärtner oder gesellige Stunden im Freien.
Die moderne Küche fügt sich harmonisch in den Wohnbereich ein. Besonders praktisch ist der separate Abstellraum, in dem sich die Anschlüsse für Waschmaschine und Trockner befinden. Dadurch bleibt das Badezimmer frei von Technik und erhält eine deutlich wohnlichere Atmosphäre.
Das Schlafzimmer bietet ausreichend Platz und Ruhe für erholsame Nächte. Hochwertige Kunststoff-Alu-Fenster mit Drei-Scheiben-Isolierverglasung sorgen für hervorragende Wärmedämmung und ein angenehmes Wohnklima.
Beheizt wird die Wohnung über eine zentrale Heizanlage mittels moderner Erdwärmepumpe, welche durch eine Photovoltaikanlage auf dem Dach unterstützt wird. Die Wärmeverteilung erfolgt komfortabel über eine Fußbodenheizung in allen Räumen. Der sehr gute Energiewert von B 29 unterstreicht die Energieeffizienz des Objekts.
Ein Kellerabteil mit ca. 5,17 m² gehört ebenfalls zur Wohnung. Zudem stehen ausreichend Besucherparkplätze direkt bei der Anlage zur Verfügung. Ein Tiefgaragenplatz kann optional um € 23.000,– erworben werden, wodurch sich ein Gesamtpreis von € 321.000,– ergibt.
Die monatlichen Betriebskosten belaufen sich auf € 289,20,- und beinhalten bereits den Tiefgaragenplatz sowie den Reparaturfondsanteil. Zusätzlich besteht die Möglichkeit, eine Wohnbauförderung in Höhe von ca. € 57.000,– zu übernehmen.
Die Wohnung ist ab sofort verfügbar und bereits bezugsfertig – ein ideales Zuhause für Eigennutzer wie auch eine interessante Gelegenheit für Anleger.
Sonstige_angaben
Einmalkosten:
- Grundbuchseintragung: 1,1%
- Grunderwerbssteuer: 3,5%
- Notarkosten: 1,2% inkl. MwSt. zzgl. Barauslagen
- Maklerhonorar: 3,6% inkl. MwSt.
Hinweis:
Alle Angaben nach bestem Wissen. Die Angaben beziehen sich teilweise auf Aussagen der Eigentümerseite. Irrtum und Zwischenverkauf vorbehalten. Dieses Exposé ist eine Vorinformation, als Rechtsgrundlage gilt alleine der abgeschlossene Kaufvertrag. §15 der Maklerverordnung gilt als vereinbart.
Ausstattung
- Bodenart
- Fliesen, Parkett
- Heizungsart
- Fussboden
- Befeuerung
- Erdwärme
- Fahrstuhl
- Personen
- Gartennutzung
- Kabel/SAT TV
- Fahrradraum
Energiepass
- Hwbwert
- 29.00
- Hwbklasse
- B
- Gebäudeart
- Wohngebäude
Kontaktperson
Immobiliendetails
- Objektnummer
- CaDo-109
- Vermarktung
- Kauf
- Objektart
- Wohnung - Alle, Wohnung - Erdgeschoss
Zustand
- Baujahr
- 2016
- Zustand
- Gepflegt
- Frei ab
- sofort
Dokumente
Dokumente
















