- 6841 Mäder
- Kaufpreis389.000,00 €
- Wohnfläche80,0 m²
- Anzahl Zimmer 4,0
- Objektnummer CaDo-096
Objektbeschreibung
Objekttitel
Charmante und gut geschnittene 4-Zimmer-Wohnung mit Tiefgaragenplatz in Mäder
Objektbeschreibung
Das Wichtigste auf einen Blick:
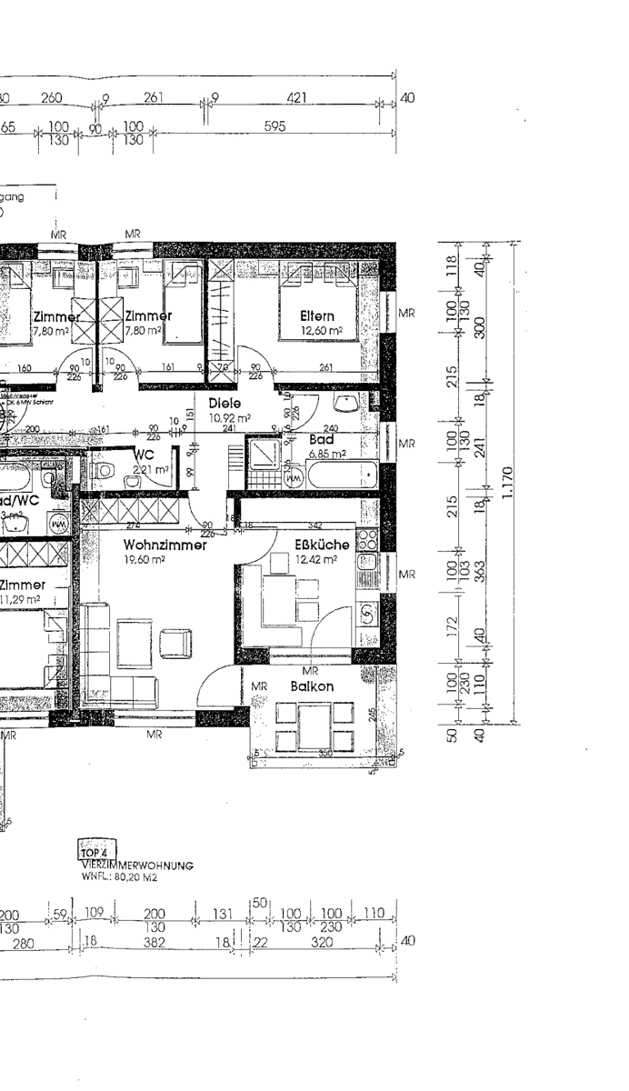
•Adresse: Reichshofstraße 21, 6841 Mäder – Top 4
•Baujahr: 1999 (Baubeginn)
•Wohnnutzfläche: ca. 79,99 m²
•Balkon: ca. 9 m²
•Keller: ca. 4,13 m²
•Stockwerk: 1. OG (kein Lift)
•Kaufpreis: € 389.000,– inkl. Tiefgaragenplatz
•HWB: C55
•Heizung: Pelletsheizung mit zentraler Fußbodenverteilung + Solaranlage
•Betriebskosten: € 339,60 inkl. Reparaturfonds und Tiefgaragenplatz
•Renovierungen: 2017 Bad, WC und Küche erneuert/modernisiert
•Verfügbarkeit: ab März 2026
Beschreibung:
Diese helle 4-Zimmer-Wohnung befindet sich im 1. Obergeschoss einer Wohnanlage mit insgesamt nur neun Wohneinheiten in gut angebundener Lage von Mäder. Erbaut im Jahr 1999, bietet das Objekt genügend Platz und einen gut durchdachten Grundriss.
Die Wohnnutzfläche von ca. 79,99 m² verteilt sich auf ein großzügiges Wohnzimmer mit Zugang zum ca. 9 m² großen Balkon, eine moderne Küche, drei weitere Zimmer, ein Badezimmer und ein separates WC. Die Wohnung ist nur ohne Lift erreichbar, was im 1. Stock jedoch kaum ins Gewicht fällt.
Im Jahr 2017 wurde das Bad, WC und die Küche erneuert, sodass sich die Wohnung in einem gepflegten und modernisierten Zustand präsentiert.
Die Beheizung erfolgt über eine Pelletsheizung mit zentraler Fußbodenheizungsverteilung. Eine Solaranlage auf dem Dach unterstützt die Warmwasserbereitung und sorgt für zusätzliche Energieeffizienz.
Ein Tiefgaragenplatz und ein Kellerabteil mit ca. 4,13 m² sind im Kaufpreis bereits mit inbegriffen.
Die Lage überzeugt durch eine gute Anbindung an öffentliche Verkehrsmittel, Einkaufsmöglichkeiten und Einrichtungen des täglichen Bedarfs.
Verfügbar ab März 2026 – ideal für Eigennutzer, die eine gut ausgestattete 4‑Zimmer‑Wohnung mit Balkon in einer gut angebundenen Wohnlage suchen.
Sonstige_angaben
Einmalkosten:
- Grundbuchseintragung: 1,1%
- Grunderwerbssteuer: 3,5%
- Notarkosten: 1,2% inkl. MwSt. zzgl. Barauslagen
- Maklerhonorar: 3,6% inkl. MwSt.
Hinweis:
Alle Angaben nach bestem Wissen. Die Angaben beziehen sich teilweise auf Aussagen des Eigentümers. Irrtum und Zwischenverkauf vorbehalten. Dieses Exposé ist eine Vorinformation, als Rechtsgrundlage gilt alleine der abgeschlossene Kaufvertrag. §15 der Maklerverordnung gilt als vereinbart.
Ausstattung
- Küche
- Einbauküche
- Heizungsart
- Zentral, Fussboden
- Befeuerung
- Solar, Pellets
- Ausrichtung Balkon/ Terrasse
- Südwest
- Kabel/SAT TV
- Gäste-WC
Energiepass
- Hwbwert
- 55.00
- Hwbklasse
- C
- Gültig bis
- 13.01.2033
- Geltende EnEV
- 2014
- Gebäudeart
- Wohngebäude
Kontaktperson
- Anrede
- Herr
- Vorname
- Carlos
- Name
- Baldauf
- Email Direkt
- carlos@immo-cado.com
- Mobil
- 00436642309137
Immobiliendetails
- Objektnummer
- CaDo-096
- Vermarktung
- Kauf
- Objektart
- Wohnung - Alle, Wohnung - Etage
Kosten
- Kaufpreis
- 389.000,00 €
Flächen
- Wohnfläche
- 80,0 m²
- Kellerfläche
- 4,1 m²
- Anzahl Zimmer
- 4,0
- Anzahl Schlafzimmer
- 3,0
- Anzahl Stellplätze
- 1,0
- Anzahl Balkone
- 1,0
- Fläche Balkon / Terrasse
- 9,0
Zustand
- Baujahr
- 1999
- Zustand
- Gepflegt
- Frei ab
- März 2026
Dokumente
Dokumente





















